Présentation générale
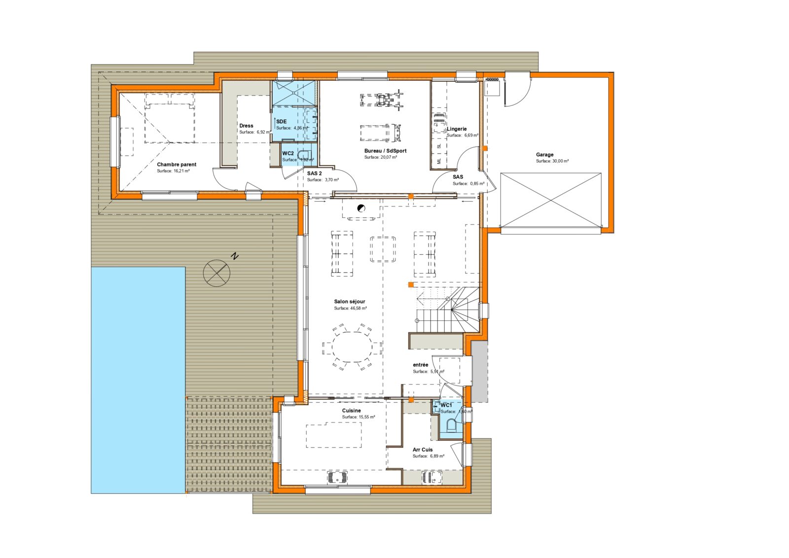
Cette maison en cours de réalisation sur la région de Pénestin, est à la fois traditionnelle et contemporaine. Son volume central à étage en toit 4 pentes ardoises s’accompagne de trois volumes RDC, dont deux en toit plat qui soulignent la modernité de cette architecture mixte. Tous les espaces s’articulent autour d’une grande pièce de vie, une passerelle donnant depuis l’étage sur ce séjour lumineux profitant de grandes ouvertures toutes hauteurs.
De généreux débords de toit, des sous-faces en alu noir, une belle terrasse en bois, une pergola bioclimatique, des brise-soleils orientables, une élégante casquette tout le long de la façade : autant d’éléments qui subliment la qualité de cette maison !
Le plus de ce projet : La suite parentale et son volume déplafonné laissant apparaitre une belle charpente traditionnelle !

