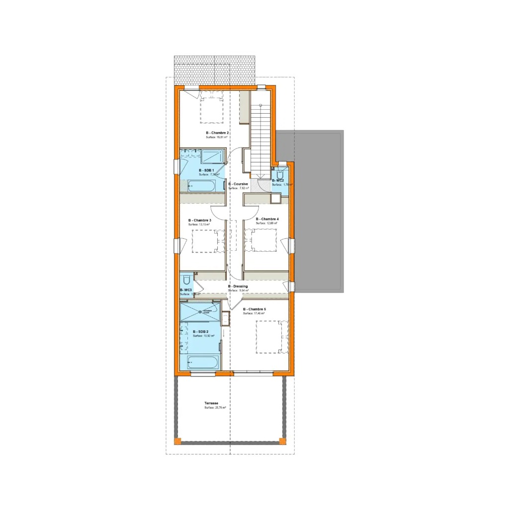
Présentation générale
Cette Villa Bauloise conçue en 2023 s’inspire de l’architecture des Villas réalisées dans les années 1900. Contrainte par un terrain étroit, elle offre tout de même de nombreuses chambres pour permettre de recevoir, avec une pièce de vie de 100 m² exposé Sud avec sa cheminée ilot.
Les clients ont pu travailler main dans la main avec leur architecte afin d’optimiser les différents lieux de vie intérieurs et extérieurs, les terrasses, le Patio, lui-même souligné par l’arrondi de ses ouvertures qui caractérise un style traditionnel baulois.

