Présentation générale
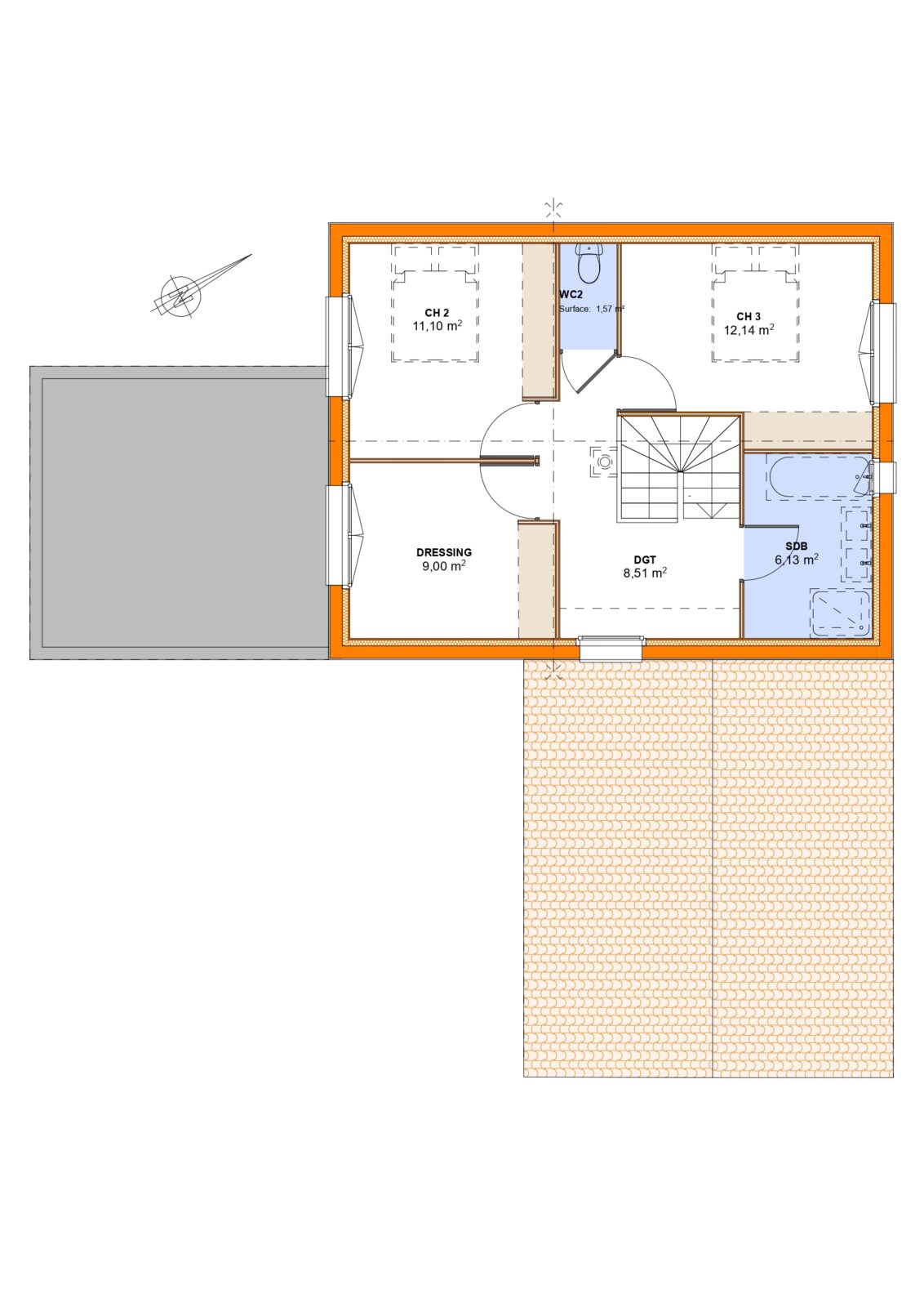
Maison traditionnelle, à étage partiel avec débords de toits sur la partie du volume étage pour la finition, cet ensemble d’architecture s’inspirant du charme du style sud Loire propose un vaste séjour profitant d’une triple exposition. Une suite parentale en rdc et 3 chambres à l’étage sous plafond rampant rendent ce projet très fonctionnel.

